Intercom Dublin, 2020

Intercom Dublin, 2020

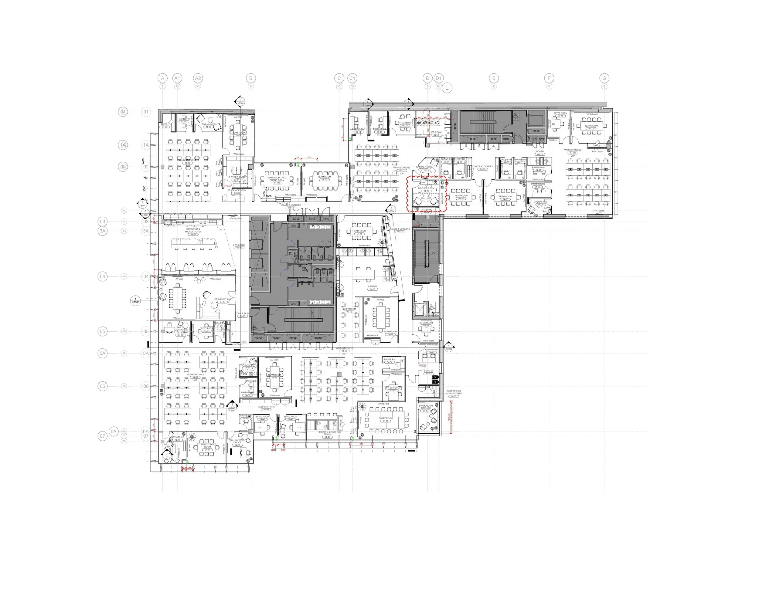
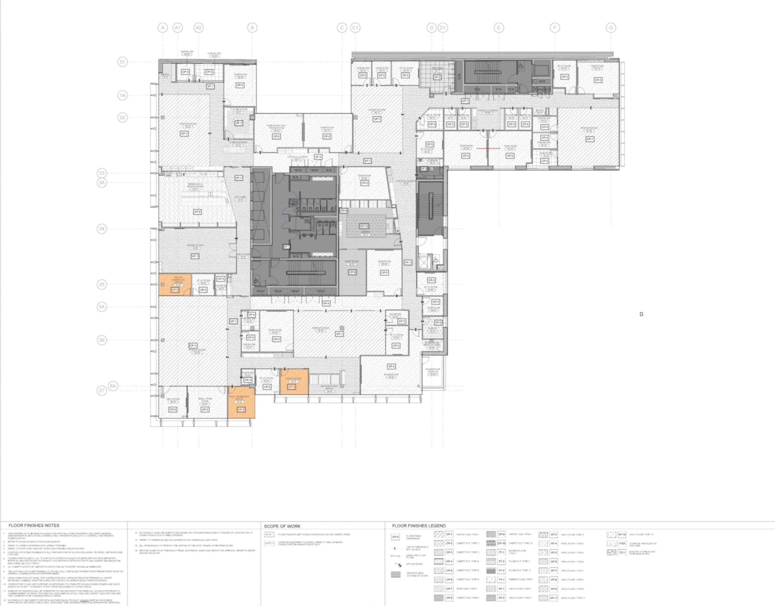
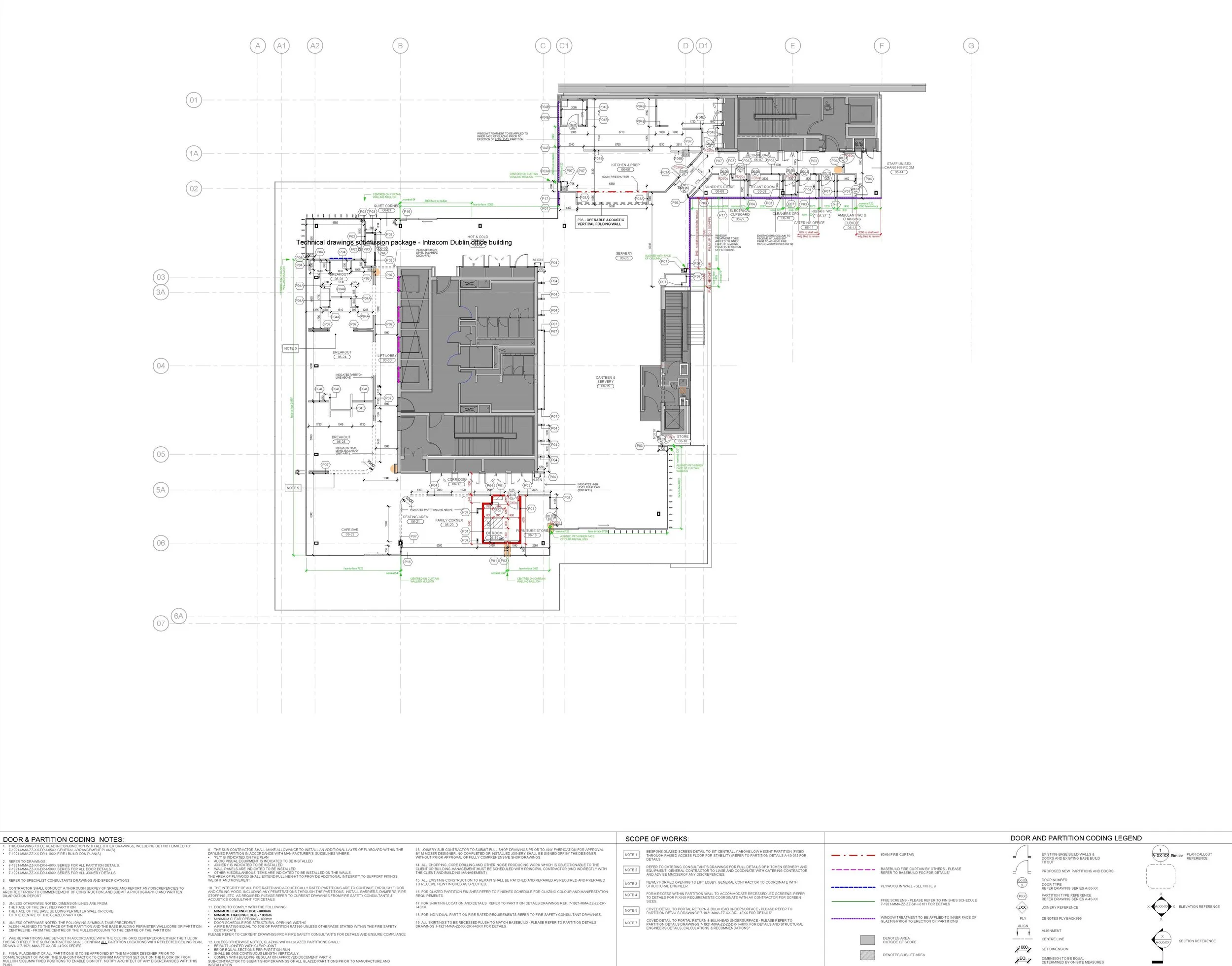
Pre-construction joinery drawing details for Intercom office space including Reception Café, Reception Desk, Micro kitchen Island, Hot & Cold Counters and Kitchen Serveries. As part of the submission package, Floor Finishes Plan, Door & Partition and Furniture Coding Plans are included with the relevant schedules.

Location: Dublin, Ireland

Year: 2020

Architect: Perkins+Will

Role: Senior Architect

Prime office building located on Monastiriou Street, one of Thessaloniki’s main avenues and the exit to the national highway. The property enjoys a strategic position opposite the New Intercity Bus Station (KTEL) and the Thessaloniki Police Department, offering excellent visibility, easy access, and high commercial value.

Currently housing the headquarters of a Public Utility Organization, the building features modern architectural design, advanced engineering, and comprehensive facilities across five floors plus two underground levels.

 Key Features

o   Total built area: 5,445 square meters

o   Plot size: 1,017.73 square meters

o   Two underground parking levels with 55 spaces + 4 outdoor spaces

o   Ground floor shop (341.58 square meters) with 5.8 m height

o   Five upper floors of modern office spaces and a mezzanine level

o   Rooftop with electromechanical installations and panoramic views

o   Landscaped garden and semi-outdoor areas for natural shading

 Technical Specifications

o   Seismic-resistant structure with advanced foundation and retaining systems

o   BMS (Building Management System) for centralized control and energy efficiency

o   HVAC system (heating, cooling, ventilation) on all floors

o   Fire detection and suppression systems (FM-200)

o   Automatic parking management

o   Server room & backup generator

o   Structured cabling for voice and data under raised flooring

o   Conference hall with interpreter’s booth and professional AV system

o   Security system with cameras, alarms & access control

o   Architectural façade lighting and solar shading louvers

Highlights

o   Exceptional location on a main city artery

o   Modern, functional, and energy-efficient design

o   Ideal for corporate headquarters or institutional use

 

Modern Office Building, Thessaloniki, Greece

Location: 256 Monastiriou St. & 7 Glinou, Menemeni, Thessaloniki, Greece

Year: 2016

Construction: M&V Constructions

Role: Project Manager

Previous
Previous

Residential

Next
Next

Stadium